射洪老旧小区户外加装电梯改造项目工程设计

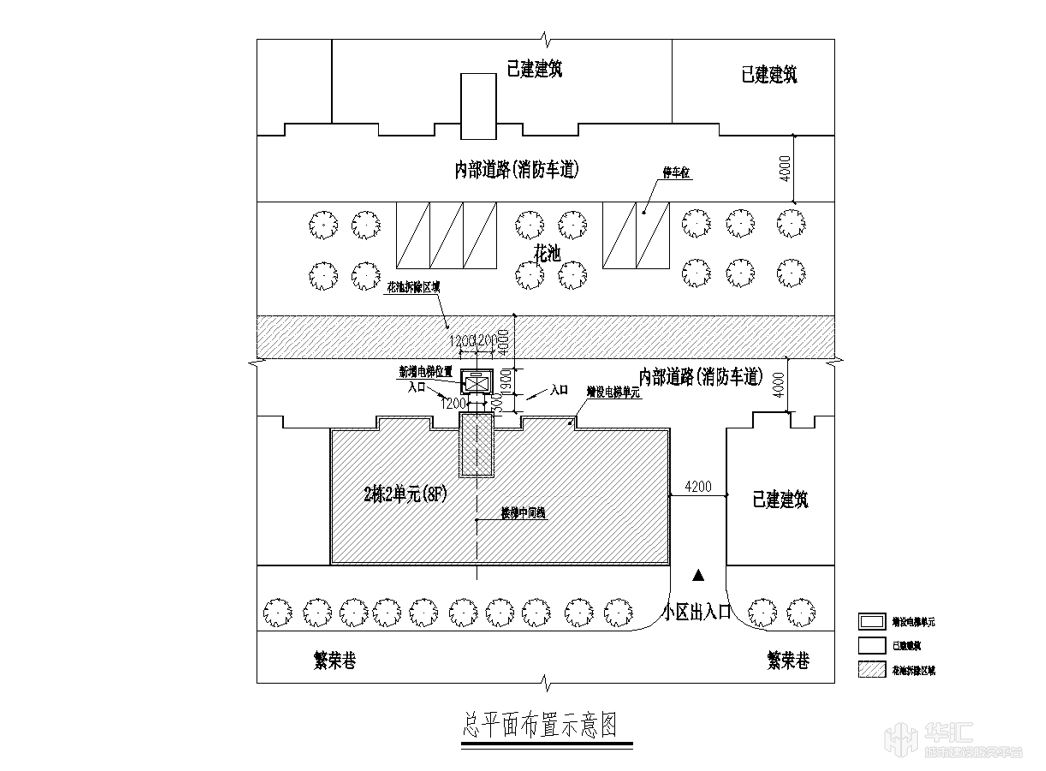
本工程位于射洪市阳湖家园 2 栋 2 单元,在楼梯外侧新增加装电梯工程,新增电梯占地面积 4.56 ㎡,总建筑面积 55.8 ㎡,提升高度 22.5m,基坑深度 1.5m,冲顶高度 4.5m,为无机房电梯。该电梯电梯开门楼层:1 层、4.5 层、6.5 层、7.5 层。

结构形式:采用钢结构,基础为筏板基础或柱下独立基础


项目分类:
老旧小区改造
项目地点:
四川省-遂宁市
主创团队:
四川中心
客 户 :
四川射洪市中升乙源科技有限公司
相关团队:
四川中心

相关业绩